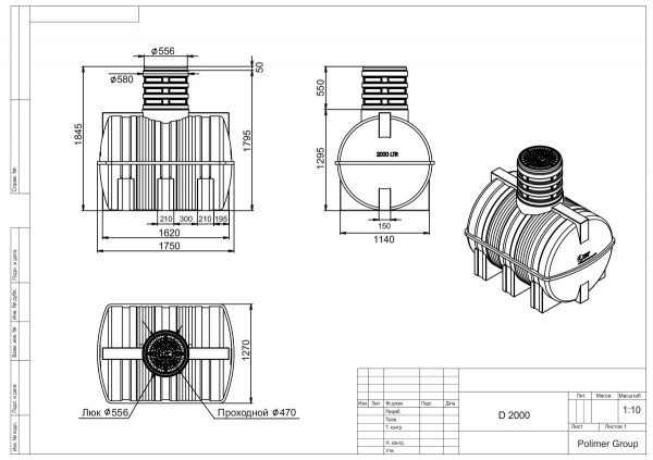
Подземная емкость для воды, топлива и иных жидкостей — полностью герметичный резервуар, применяемый для накопления и хранения жидкостей. Если это отстойники, то они устанавливаются в местах, где ограничен почвенный сброс сточных вод. Если для питьевой воды или технической – могут использоваться в местах, где подача воды нерегулярная. Емкости технические пластиковые изготавливаются с использованием метода бесшовного ротоформования.
Емкости подземные долговечны, просты в монтаже, и удобны эксплуатации. Купить емкости для септика с размещением под землей необходимо для накопления продуктов переработки автономной канализации. Подземные резервуары различаются глубиной установки, в зависимости от исполнения подходят для хороших и обводненных грунтов с повышенным УГВ.
Баки под канализацию, топливо и для другого назначения отличаются термостойкостью, долгим сроком службы (40-50 лет), устойчивы к коррозии и не требуют особого обслуживания. Благодаря ребрам жесткости, при правильной установке, накопительная емкость не деформируется под воздействием механических нагрузок.
Цена такого резервуара в сочетании с легкостью монтажа и долговечностью намного выгоднее, чем у бетонных или стальных аналогов. Они успешно эксплуатируются частными домохозяйствами и коммерческими пользователями.
Менеджеры нашей компании помогут выбрать нужную модель. Также мы доставим купленный товар в любую точку России своими силами или транспортной компанией.



